Strona Główna Realizacje
 
  Kategorie  
Meble sklepowe ATUT i inne
Meble drewniane z płyty wiórowej 18 mm
  Lady WYPRZEDAŻ końcówek serii (13)
  Lady proste kolor grusza dzika-calvados (40)
  Lady do sprzedaży 2 DĘBY NOWE KOLORY (109)
  Lady do sprzedaży NOWY TYP WYPRZEDAŻ JASNO SZARY (73)
  Lady do sprzedaży PROSTE jasno szare (40)
  Lady specjalnego przeznaczenia i komplety lad (31)
  Regały bez baldachimów (29)
  Regały do sprzedaży Nowe Kolory - DWA DĘBY (50)
  Regały z baldachimami (33)
  Ragały piekarnicze z płyty (12)
  Baldachimy z oświetleniem i nadstawki na regały (31)
  Regały na warzywa z płyty lub drewniane (14)
  Gabloty (16)
  Gondole z płyty (6)
  Szafki blat pod zlew i szafy BHP szafki kawowe (31)
  Zamówienia indywidualne (16)
Kolory mebli z płyty -różne opcje
  Kolory mebli z płyty standardowe BEZ DOPŁAT (13)
  Kolory z płyty z DOPŁATĄ USTALONĄ 15 % (7)
  Kolory płyty z dopłatami Reprodukcje Drewna (72)
  Kolory płyty z dopłatami Jednobarwne i Fantazyjne (80)
Meble metalowe
  Regały przyścienne (72)
  Gondole dwustronne (42)
  Regały na alkohol (60)
  Regały metalowe na pieczywo (54)
  Regały na warzywa (69)
  Regały na papierosy (4)
  Regały na prasę i gry (4)
  Lady witryny cukiernicze neutralne nowego typu (14)
  Regały magazynowe - dyskontowe (5)
  Regały metalowe cukiernicze (11)
  Dodatki do mebli metalowych (4)
  Boksy Kasowe (31)
  Kolory mebli metalowych (33)
Meble metalowe MAGO
  Regały przyścienne Mago (13)
  Elementy metalowe systemu MAGO (50)
  Gondole metalowe MAGO (18)
Meble ze szkła i plexi
  Półki szklane do regałów (17)
  Gabloty szklane na lady (24)
  Regały impulsowe z plexi (3)
Akcesoria sklepowe
Cenówki laminowane i inne
  Kartonowe jednorazowe (1)
  Kasetki cenowe plastik (42)
  Klamry na skrzynki do cenówek (55)
  Lamin. format na Butelki (2)
  Lamin. format 50x65mm (20)
  Lamin. format 60x95mm (24)
  Lamin. format 65x95mm (31)
Koszyki sklepowe,wózki
  Kosze ekspozycyjne wsypowe (14)
  Koszyki sklepowe (21)
  Wiaderka (3)
  Wózki sklepowe (15)
Listwy cenowe
  Klejone od frontu (42)
  Klejone od góry (14)
  Nakładane na reg. metalowe (27)
  Nakładane na reg. z płyty (15)
  Na półki szklane (16)
  Na kosze (25)
  Na haki i inne (4)
  Osłonki promocyjne (10)
  Kształty półek i koszy sklepowych (15)
Lustra obserwacyjne (15)
Metkownice i haki
  Haczyki haki i wieszaki (20)
  Metkownice (4)
Oddzielacz kasowy (4)
Ograniczniki półek od frontu
  Metalowe 2 systemy (5)
  Uniwersalne klejone (5)
  Ze szkła (4)
  Z plexi (8)
Przegrody wewnętrzne -separatory półek
  Popychacze półek (15)
  Wysokości 12 cm (9)
  Wysokości 3 cm (5)
  Wysokości 6 cm (9)
Ramki promocyjne A3,A4,A5
  A3 ( 420x297mm ) (41)
  A4 ( 210x297mm ) (43)
  A5 ( 148x210mm ) (37)
  Systemy podwieszania cen, ramek (8)
  Tablice kredowe , potykacze (6)
Skrzynki na owoce i inne
  Duże 600x400 mm (13)
  Małe 300x400 mm (8)
Tablice naścienne i potykacze zewnętrzne
  A2 ( 420x594 mm ) (6)
  B2 ( 500x700 mm ) (6)
Krajalnice wagi wilki kloce rolery do parówek
Krajalnice
  Krajalnice do chleba (0)
  Krajalnice do sera (17)
  Krajalnice do wędlin (23)
Lampy owadobójcze firmy Stalgast (8)
Rolery do parówek, podgrzewacze (18)
Wagi (5)
Wilki,kloce,topory (18)
Urządzenia chłodnicze
Lady chłodnicze
  Lady Cebea z agregatem wewnętrznym (23)
  Lady COLD z agregatem wewnętrznym (27)
  Lady chłodnicze Igloo (11)
  Lady MAWI z agregatem wewnętrznym (12)
  Lady Cebea do agregatu zewnętrznego (9)
  Lady COLD do agregatu zewnętrznego (5)
Regały chłodnicze
  Regały Cebea z agregatem wewnętrznym (10)
  Regały COLD z agregatem wewnętrznym (8)
  Regały IGLOO z agregatem wewnętrznym (10)
  Regały RAPA z agregatem wewnętrznym (5)
  Regały MAWI z agregatem wewnętrznym (18)
  Regały Cebea agregat zewnętrzny (5)
  Regały COLD agregat zewnętrzny (7)
  Regały MAWI z agregatem zewnętrznym (6)
Szafy i szafki chłodnicze
  Szafy firmy Cebea (17)
  Szafy firmy Cold (6)
  Szafy firmy IGLOO (9)
  Szafy firmy Stalgast (10)
  Szafy firmy Rapa (43)
  Szafy firmy MAWI (8)
Witryny cukiernicze
  Witryna firmy Cebea (22)
  Witryna firmy Cold (7)
  Witryna firmy Stalgast (9)
  Witryna firmy IGLOO (21)
  Witryna firmy RAPA (6)
  Witryna firmy MAWI (5)
Urządzenia mroźnicze
  Zamrażarki skrzyniowe Stalgast (5)
  Urządzenia firmy Cebea (5)
  Urządzenia firmy Cold (3)
  Urządzenia firmy MAWI (5)
Dystrybutory do lodów
  Dystrybutory firm Cebea i Cold (4)
  Dystrybutory firmy IGLOO (10)
Witryny sałatkowe chłodnicze
  Sałatkowe firmy Cebae i Igloo (6)
  Witryna sałatkowa MAWI (1)
Witryny chłodnicze Igloo-inne na stacje benzynowe
  Witryny na stacje benzynowe (9)
Stoliki kasowe firmy CEBEA (11)
Meble ze stali nierdzewnej
Pojemniki GN oraz tacki (47)
Witryny grzewcze-Bemary
  Bemary firmy Cebea (2)
  Bemary firmy Cold (7)
  Bemary firmy Igloo (6)
  Bemary firmy Stalgast (25)
  Bemary firmy RAPA (2)
  Bemar firmy MAWI (2)
Kosze popielnice kosze na parasole (10)
Dozowniki kubków, klapki, podajniki (34)
Półki wiszące naścienne (36)
Stoły przyścienne (133)
Meble sklepowe ALBO
Kolory mebli z płyty ALBO (11)
System Gama Regały (24)
System Gama Lady (30)
System Idea Regały (19)
System Idea Lady (32)
System Piccolino Gabloty i Lady (16)
System POLO -Gabloty szklane i lady (11)
System Vario Gabloty (36)
System Vario Lady (24)
Gabloty witryny piekarnicze SNACK (14)
PANEL SKLEPOWY - SPACE WALL (6)

  Realizacja  
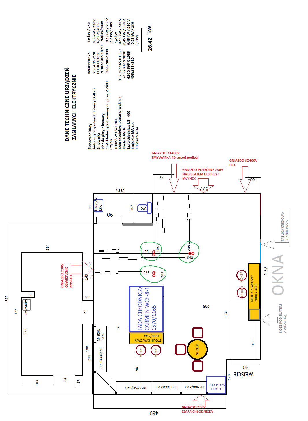
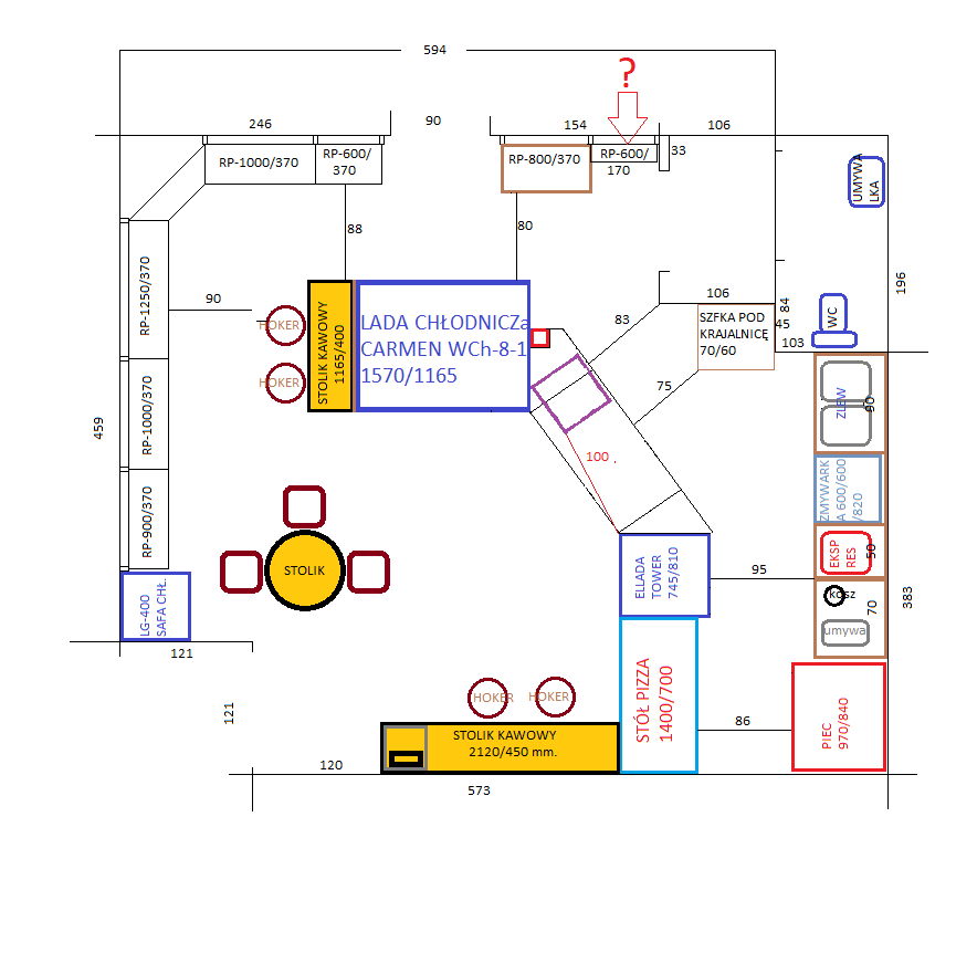
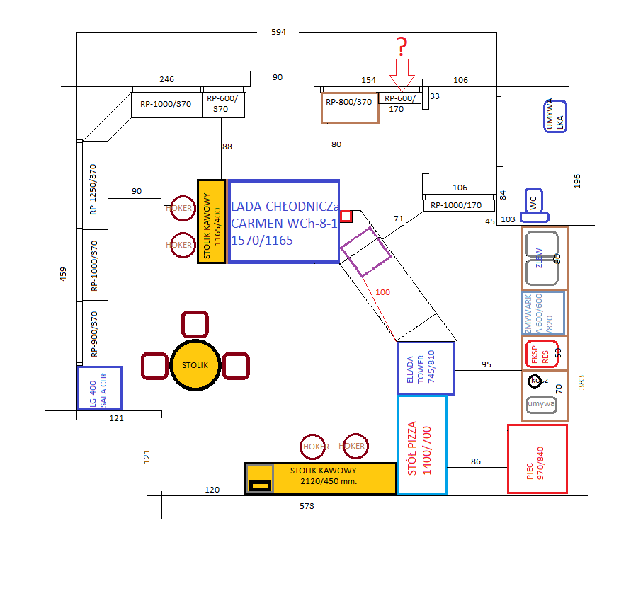
Sklep Włoski Wieliczka nr.4

Opis realizacji


   

W razie pytań prosimy o kontakt mailowy lament27@gmail.com
lub telefoniczny 12 658 51 15
komórkowy : 785 21 97 48 lub 605 78 79 13

 

 
  Zapytanie  
Złóż zapytanie
 
  Koszyk  
Aktualnie w Twoim koszyku znajduje się 0 fantastycznych towarów
 
  Promocje  
Aktualnie nasze promocje obejmują 50 fantastycznych towarów
 
  Producenci  
 
  Logowanie